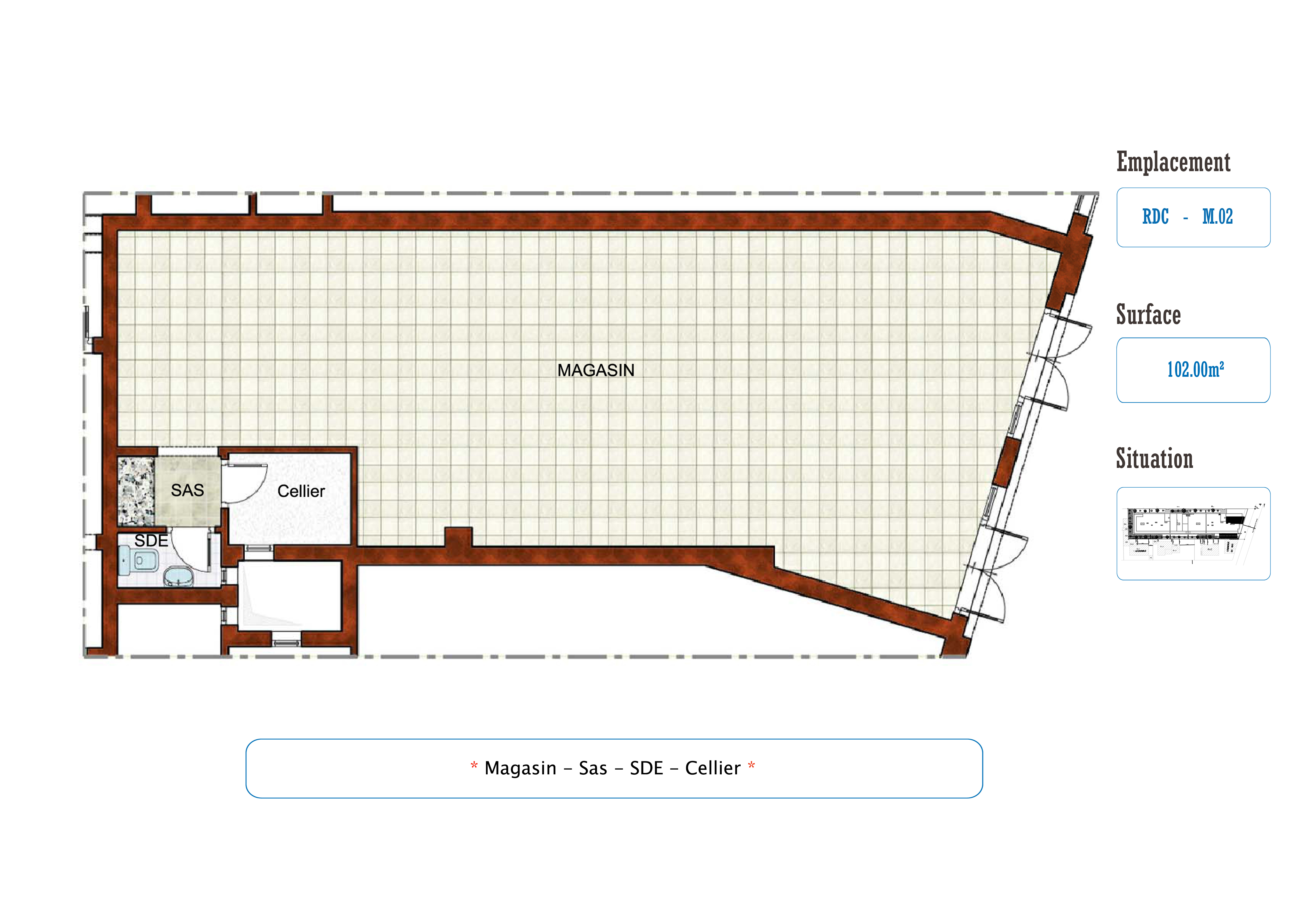
M.02 - RESIDENCE LES PINS
LE BARDO - LE BARDO
Caractéristiques du lot
Type du bien : LOCAL COMMERCIAL
Nombre de Pièces : 1
Orientation :
Niveau étage : RDC
Surface Couverte : 102 m²
Surface Totale : m²
Prix/m² : DT
Prix : DT

