Elyssimmo-Neuf.com
Immobilier Neuf
|
Construire sa maison
|
Travaux et Rénovation
|
Financement
Crédit immobilier
Simuler votre crédit
Financer son projet
Les frais liés au crédit
|
Annuaire des promoteurs
|
Créer votre projet
|
Contact
|
Facebook
|
Espace Personnel
|
Le Programme
Autres Lots
Demande d'informations
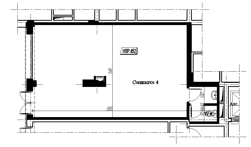
Commerce 4 -
-
Caractéristiques du lot
Type du bien :
LOCAL COMMERCIAL
Nombre de Pièces :
1
Orientation :
Niveau étage :
RDC
Surface Couverte :
60.00 m²
Surface Totale :
58.00 m²
Prix/m² :
DT
Prix :
DT
Demande d'informations
Simuler VOTRE CRÉDIT
Newsletter
Inscrivez vous à la newsletter pour être
tenu informé des nouveaux programmes
et actualités :
Annuaire des promoteurs
EL BIRI
STKE EMAR
CARTHAGE VILLAS
YAMA IMMOBILIERE
IMMOBILIERE LES AIGLES ARABE
El IBTIKAR
TOURISM BUILDING BRANCH
P&F IMMOBILIERE