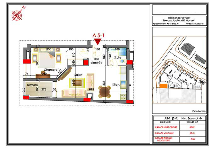
AS1 - RESIDENCE ELYSEE
JARDINS D'El MENZAH - JARDINS D'El MENZAH 2
Caractéristiques du lot
Type du bien : APPARTEMENT
Nombre de Pièces : 1
Orientation :
Niveau étage : RDJ
Surface Couverte : m²
Surface Totale : 62 m²
Prix/m² : DT
Prix : DT

