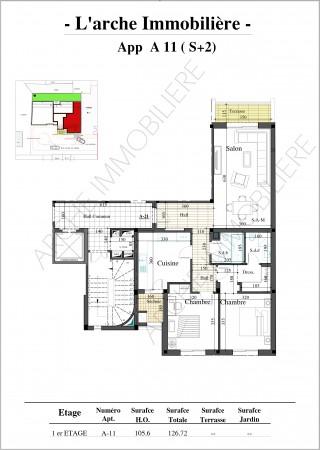
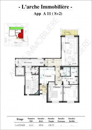
CA11 - RESIDENCE CORALYS
LA MARSA - SIDI ABDELAZIZ
Caractéristiques du lot
Type du bien : APPARTEMENT
Nombre de Pièces : 2
Orientation :
Niveau étage : 1ER
Surface Couverte : m²
Surface Totale : 126 m²
Prix/m² : DT
Prix : DT

