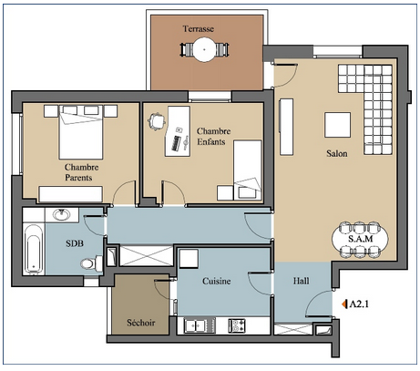
A 2.1 - RESIDENCE AVEROES
HAMMAMET MREZGA - MREZGA CITE EL WAFA
Caractéristiques du lot
Type du bien : APPARTEMENT
Nombre de Pièces : 2
Orientation :
Niveau étage : 1ère étage
Surface Couverte : 106 m²
Surface Totale : 124 m²
Prix/m² : DT
Prix : DT
