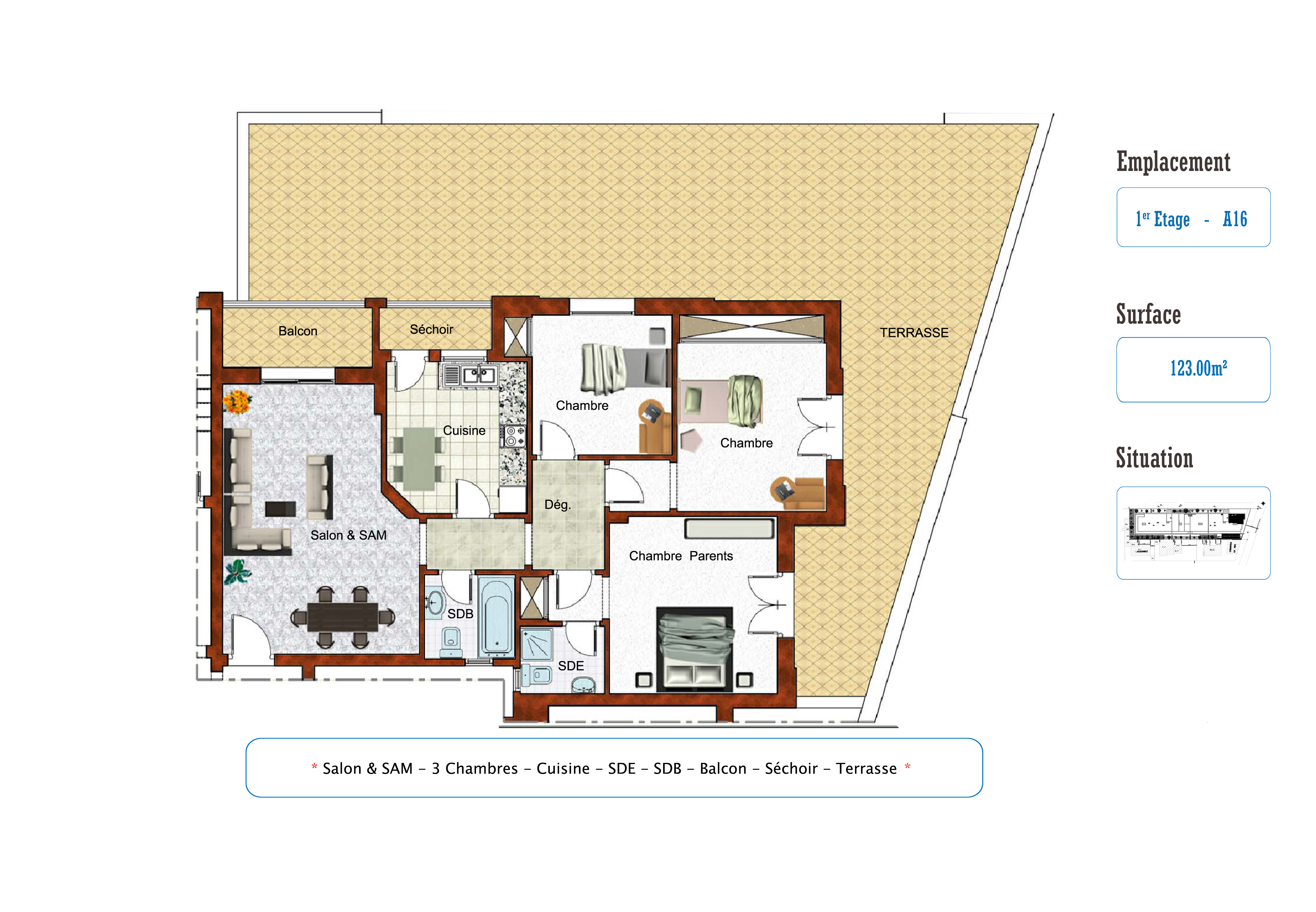
A16 - RESIDENCE LES PINS
LE BARDO - LE BARDO
Caractéristiques du lot
Type du bien : APPARTEMENT
Nombre de Pièces : 4
Orientation :
Niveau étage : 1ère
Surface Couverte : 123 m²
Surface Totale : m²
Prix/m² : DT
Prix : DT

