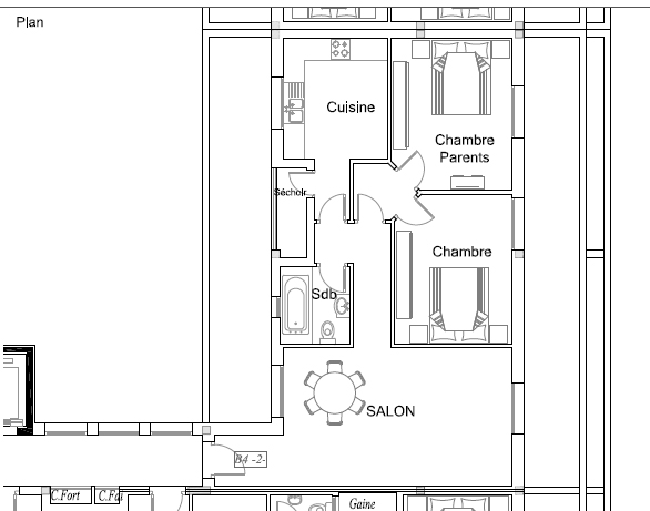
B4-2 - RESIDENCE AL WALID
BOUMHEL BASSATINE - BOU MHEL EL BASSATINE
Caractéristiques du lot
Type du bien : APPARTEMENT
Nombre de Pièces : 3
Orientation :
Niveau étage : 4ème
Surface Couverte : m²
Surface Totale : 116.00 m²
Prix/m² : 1340 à 1380 DT
Prix : DT

