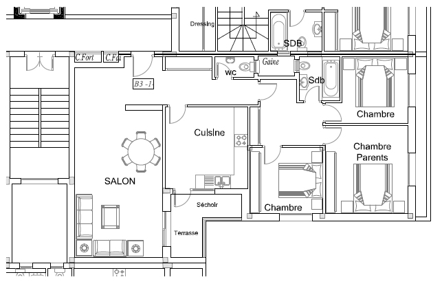
B3-1 - RESIDENCE AL WALID
BOUMHEL BASSATINE - BOU MHEL EL BASSATINE
Caractéristiques du lot
Type du bien : APPARTEMENT
Nombre de Pièces : 4
Orientation :
Niveau étage : 3ème
Surface Couverte : m²
Surface Totale : 149.00 m²
Prix/m² : 1340 à 1380 DT
Prix : DT

