Duplexe - RESIDENCE LES VIOLETTES
ENNASR - ENNASR 2
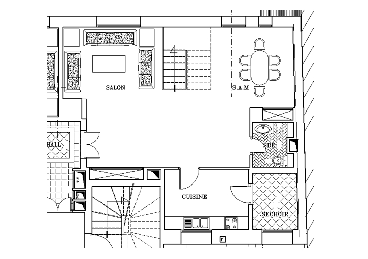
Caractéristiques du lot
Type du bien : DUPLEX / LOFT
Nombre de Pièces : 3
Orientation :
Niveau étage : RDC
Surface Couverte : m²
Surface Totale : 265 m²
Prix/m² : DT
Prix : 530.000 DT


