D4-2 - RESIDENCE BEJA GARDEN
BEJA - BEJA
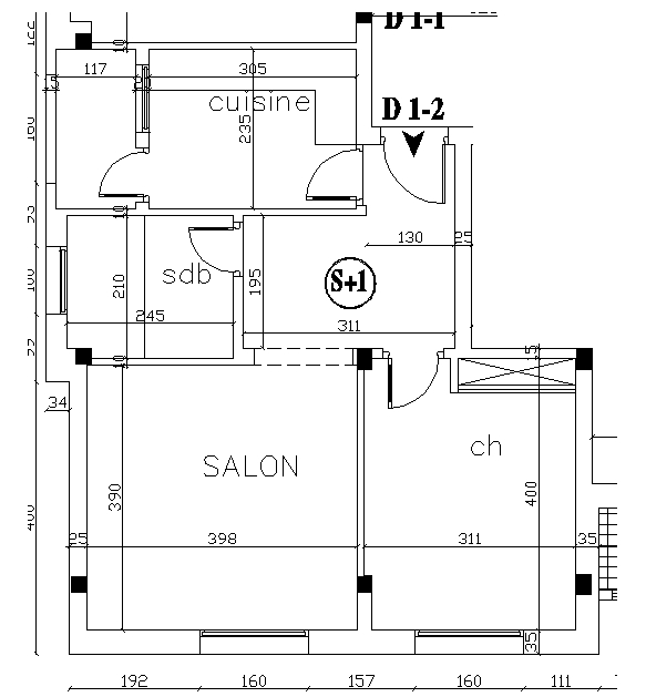
Caractéristiques du lot
Type du bien : APPARTEMENT
Nombre de Pièces : 2
Orientation :
Niveau étage : 4
Surface Couverte : m²
Surface Totale : m²
Prix/m² : DT
Prix : DT

