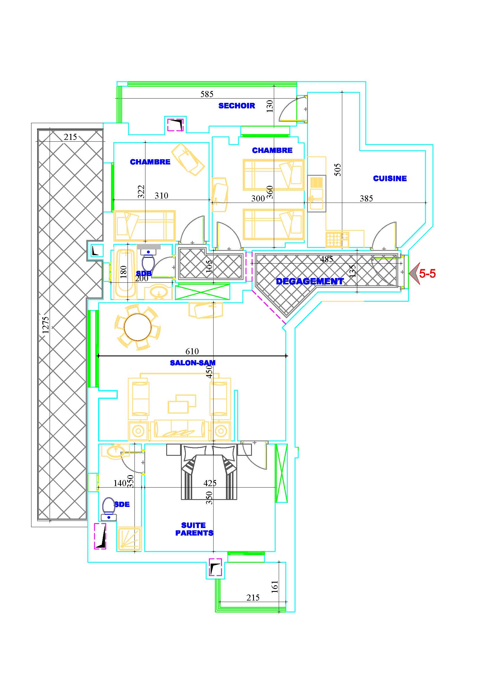
App 5.5 - PANORAMA RESIDENCE
JARDINS D'El MENZAH - JARDINS D'El MENZAH 2
Caractéristiques du lot
Type du bien : APPARTEMENT
Nombre de Pièces : 3
Orientation :
Niveau étage : 5EME
Surface Couverte : m²
Surface Totale : m²
Prix/m² : DT
Prix : DT

