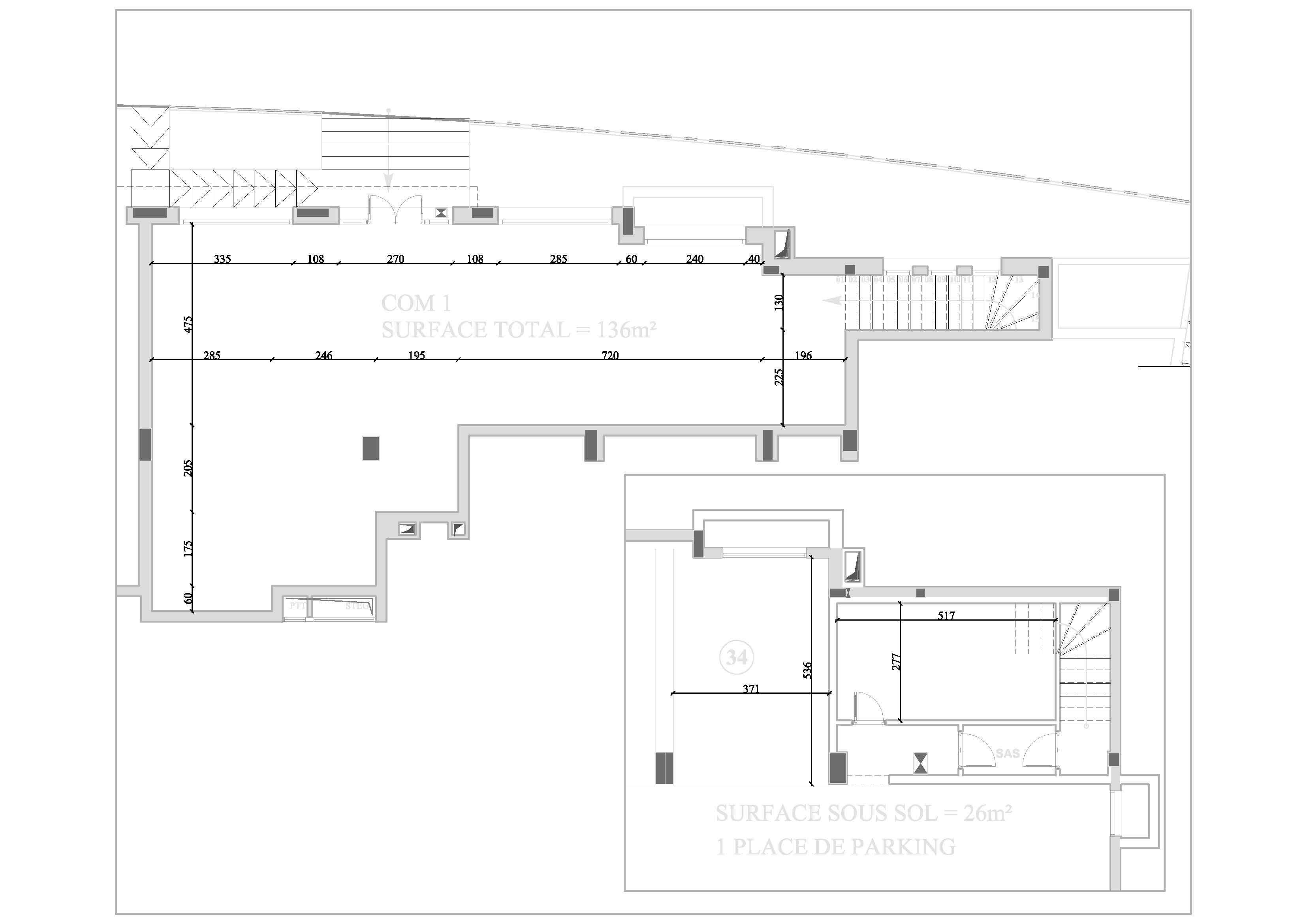
Com1 - DAR CARTHAGE
JARDINS DE CARTHAGE - JARDINS DE CARTHAGE
Caractéristiques du lot
Type du bien : LOCAL COMMERCIAL
Nombre de Pièces : 1
Orientation :
Niveau étage : RDC
Surface Couverte : m²
Surface Totale : 136 m²
Prix/m² : DT
Prix : 598.800 DT

