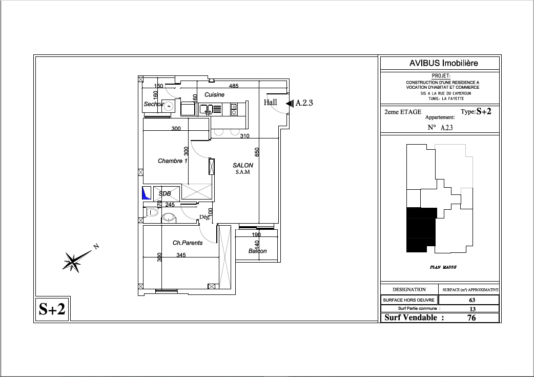
A23 - RESIDENCE DJALME
CENTRE VILLE - LAFAYETTE
Caractéristiques du lot
Type du bien : APPARTEMENT
Nombre de Pièces : 2
Orientation :
Niveau étage : 2EME
Surface Couverte : m²
Surface Totale : 76 m²
Prix/m² : DT
Prix : DT

