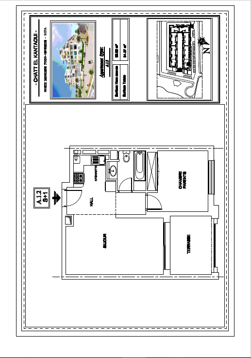
A.1.2 - RESIDENCE CHATT EL KANTAOUI
SOUSSE - EL KANTAOUI
Caractéristiques du lot
Type du bien : APPARTEMENT
Nombre de Pièces : 1
Orientation :
Niveau étage : 1ER
Surface Couverte : m²
Surface Totale : 84.57 m²
Prix/m² : DT
Prix : DT

