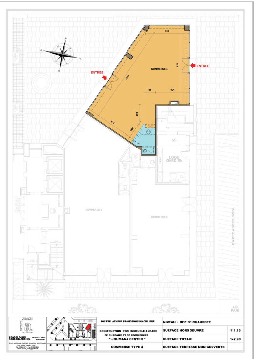
COM 4 - JOUMANA CENTRE
LE LAC NORD - LAC 2 (Espaces Des Affaires)
Caractéristiques du lot
Type du bien : LOCAL COMMERCIAL
Nombre de Pièces : 1
Orientation :
Niveau étage : RDC
Surface Couverte : m²
Surface Totale : 142 m²
Prix/m² : DT
Prix : DT

