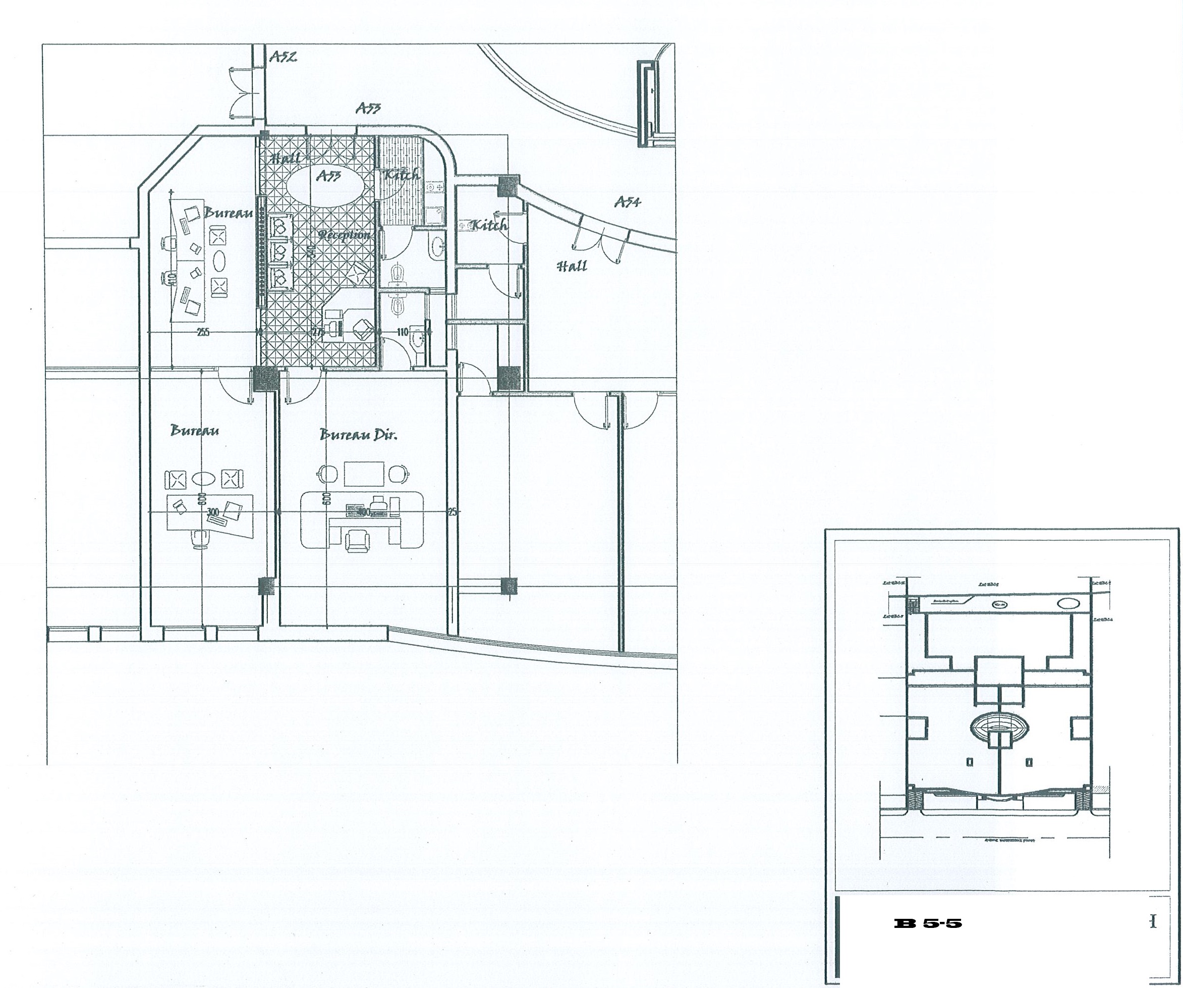
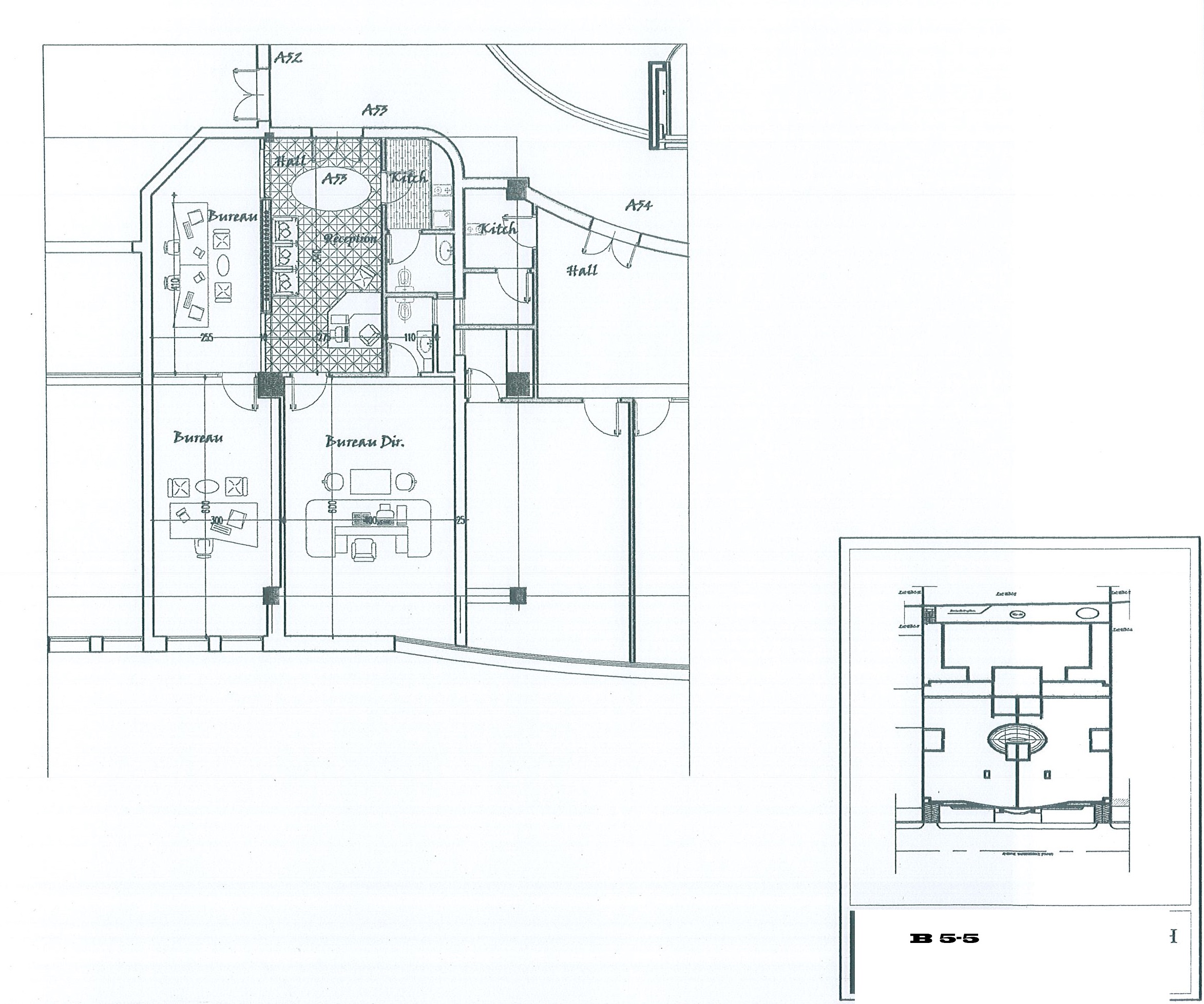
B 4-5 - CENTRE D'AFFAIRE LE MONTPLAISIR
MONTPLAISIR - MONTPLAISIR
Caractéristiques du lot
Type du bien : BUREAU
Nombre de Pièces : 0
Orientation :
Niveau étage : 4 EME ETAGE
Surface Couverte : m²
Surface Totale : 110 m²
Prix/m² : DT
Prix : DT

