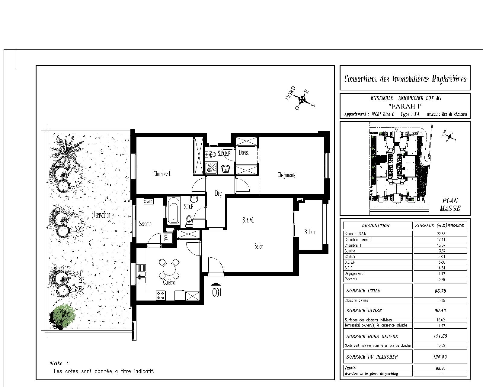
FARAH2C01 - RESIDENCE FARAH
LA SOUKRA - DAR FADHAL
Caractéristiques du lot
Type du bien : APPARTEMENT
Nombre de Pièces : 2
Orientation :
Niveau étage : RDC
Surface Couverte : 111.5 m²
Surface Totale : 125.39 m²
Prix/m² : 1800 DT
Prix : DT

