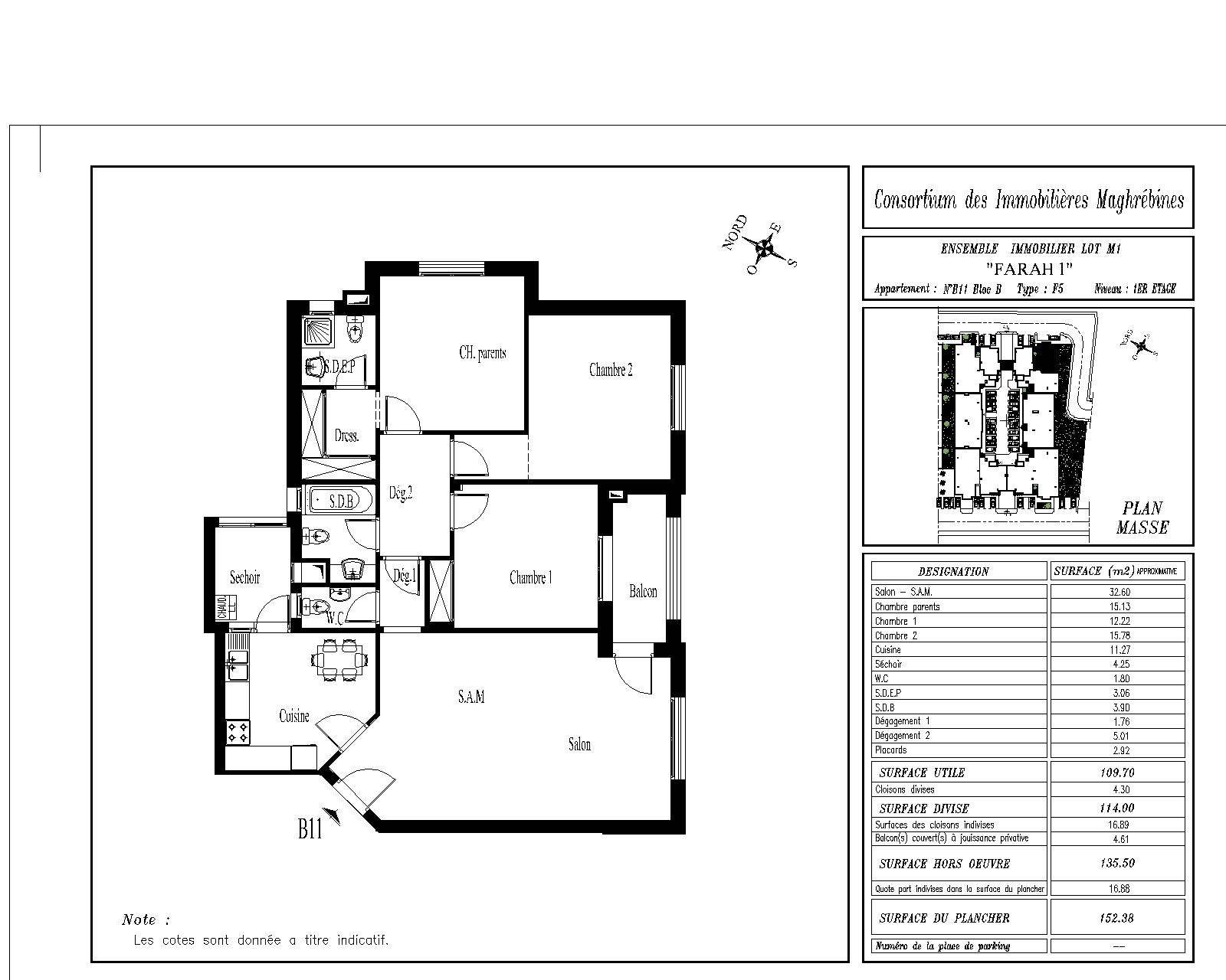
FARAH2B11 - RESIDENCE FARAH
LA SOUKRA - DAR FADHAL
Caractéristiques du lot
Type du bien : APPARTEMENT
Nombre de Pièces : 2
Orientation :
Niveau étage : 1ère étage
Surface Couverte : 153.85 m²
Surface Totale : 152.36 m²
Prix/m² : 1800 DT
Prix : DT

