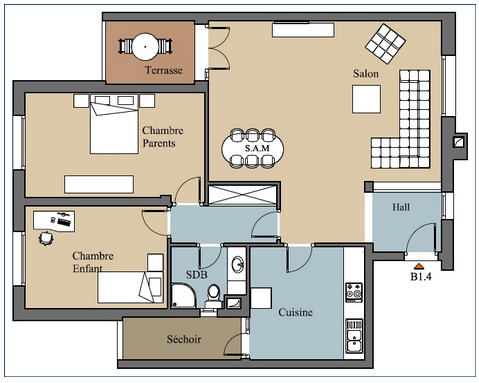
B 1.4 - RESIDENCE AVEROES
HAMMAMET MREZGA - MREZGA CITE EL WAFA
Caractéristiques du lot
Type du bien : APPARTEMENT
Nombre de Pièces : 2
Orientation :
Niveau étage : 4 eme Etage
Surface Couverte : 116 m²
Surface Totale : 136 m²
Prix/m² : DT
Prix : DT
