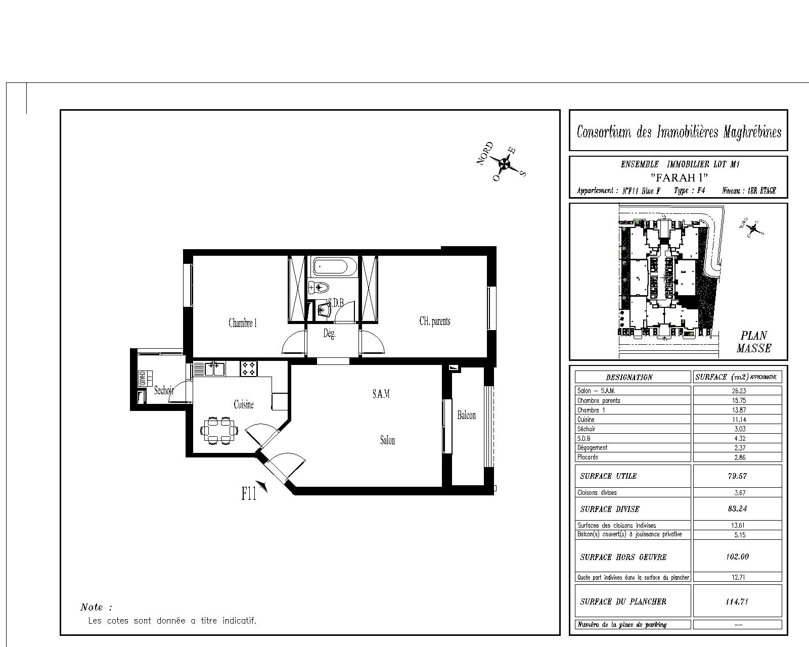
FARAH1F11 - RESIDENCE FARAH
LA SOUKRA - DAR FADHAL
Caractéristiques du lot
Type du bien : APPARTEMENT
Nombre de Pièces : 2
Orientation :
Niveau étage : 1ère étage
Surface Couverte : 113 m²
Surface Totale : 114.71 m²
Prix/m² : 1800 DT
Prix : DT

