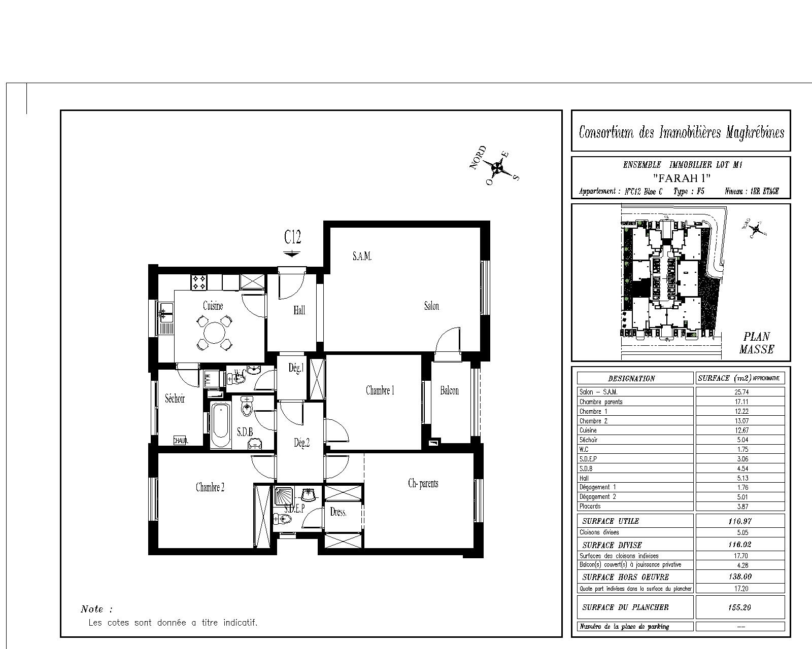
FARAH1C12 - RESIDENCE FARAH
LA SOUKRA - DAR FADHAL
Caractéristiques du lot
Type du bien : APPARTEMENT
Nombre de Pièces : 3
Orientation :
Niveau étage : 1ère étage
Surface Couverte : 155 m²
Surface Totale : 155.2 m²
Prix/m² : DT
Prix : 1800 DT

