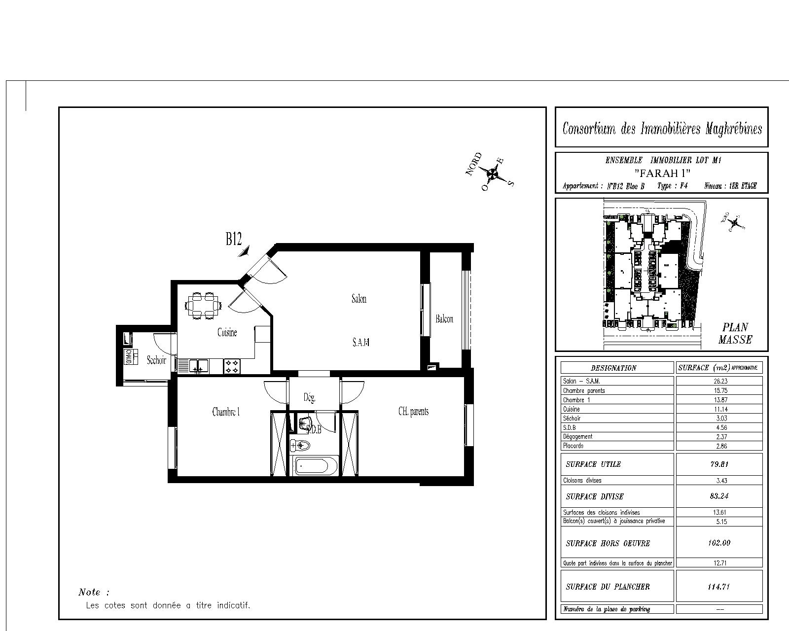
FARAH1B12 - RESIDENCE FARAH
LA SOUKRA - DAR FADHAL
Caractéristiques du lot
Type du bien : APPARTEMENT
Nombre de Pièces : 2
Orientation :
Niveau étage : 1ère étage
Surface Couverte : 112.55 m²
Surface Totale : 115.63 m²
Prix/m² : 1800 DT
Prix : DT

