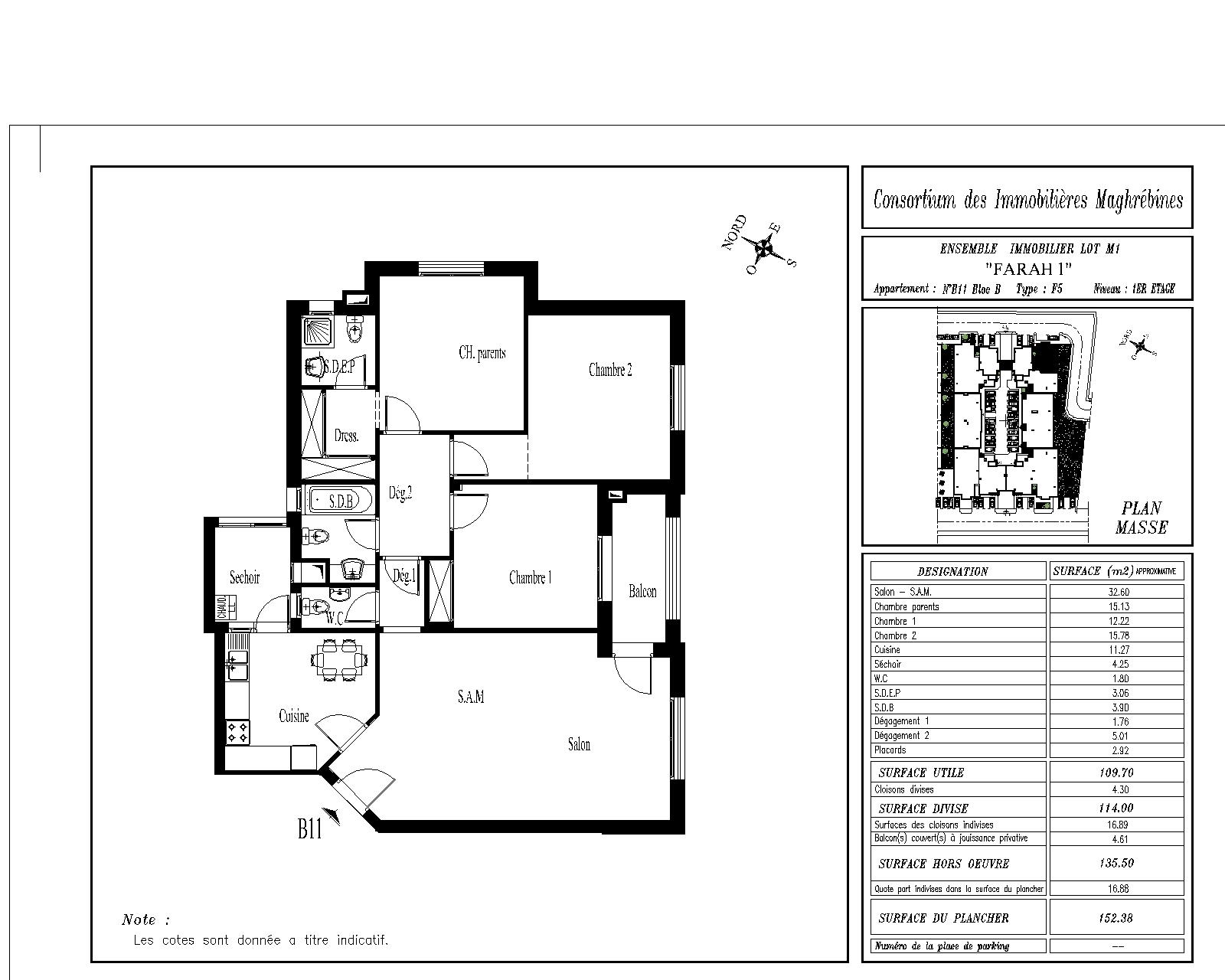
FARAH1B11 - RESIDENCE FARAH
LA SOUKRA - DAR FADHAL
Caractéristiques du lot
Type du bien : APPARTEMENT
Nombre de Pièces : 3
Orientation :
Niveau étage : 1ère étage
Surface Couverte : 152 m²
Surface Totale : 152.38 m²
Prix/m² : 1800 DT
Prix : DT

