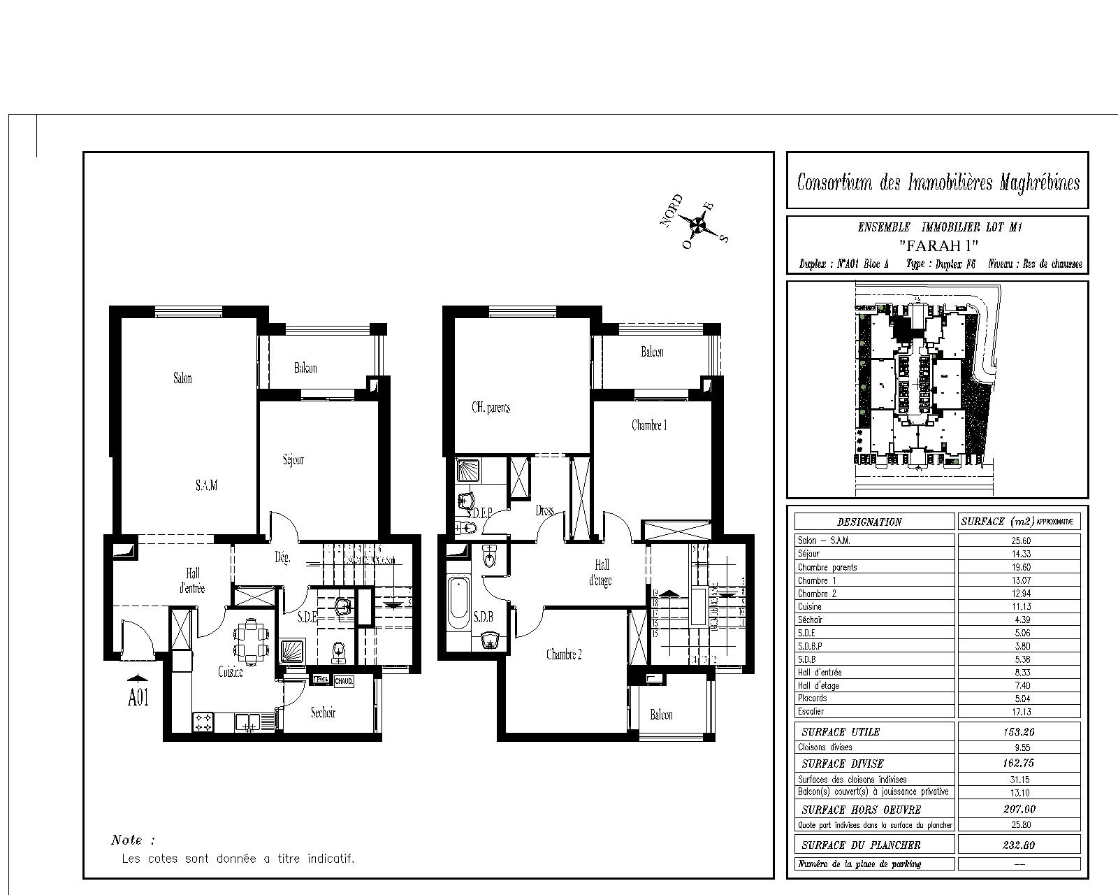
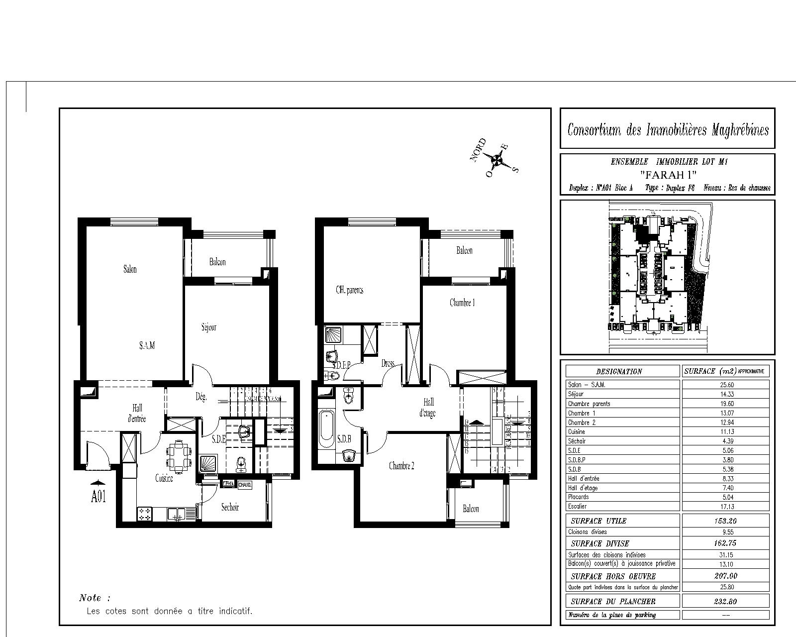
FARAH1A01 - RESIDENCE FARAH
LA SOUKRA - DAR FADHAL
Caractéristiques du lot
Type du bien : DUPLEX / LOFT
Nombre de Pièces : 4
Orientation :
Niveau étage : RDC
Surface Couverte : 228 m²
Surface Totale : 232.66 m²
Prix/m² : 1800 DT
Prix : DT

