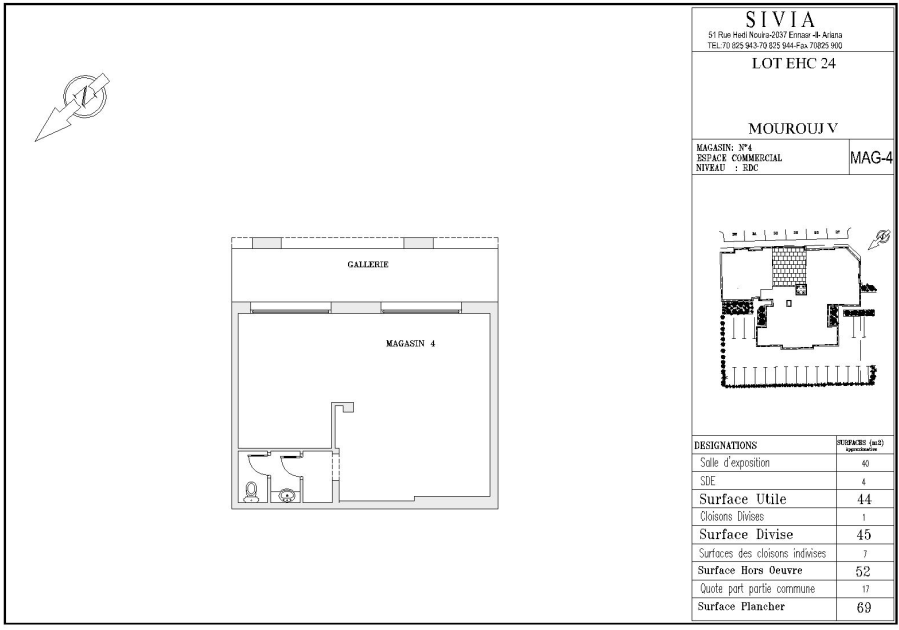
MAG 4 - RESIDENCE EL MAJED
EL MOUROUJ - EL MOUROUJ 5
Caractéristiques du lot
Type du bien : APPARTEMENT
Nombre de Pièces : 0
Orientation :
Niveau étage : RDC
Surface Couverte : 52 m²
Surface Totale : 69 m²
Prix/m² : DT
Prix : 101.000 DT
