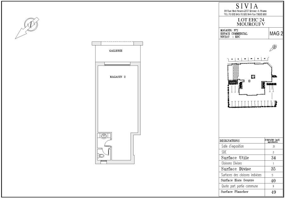
MAG 2 - RESIDENCE EL MAJED
EL MOUROUJ - EL MOUROUJ 5
Caractéristiques du lot
Type du bien : APPARTEMENT
Nombre de Pièces : 0
Orientation :
Niveau étage : RDC
Surface Couverte : 49 m²
Surface Totale : 70 m²
Prix/m² : DT
Prix : 76.000 DT
