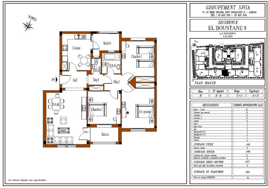
D9 - RESIDENCE EL BOUSTEN
LA SOUKRA - BORJ LOUZIR
Caractéristiques du lot
Type du bien : APPARTEMENT
Nombre de Pièces : 3
Orientation :
Niveau étage : 2
Surface Couverte : 127 m²
Surface Totale : 135 m²
Prix/m² : DT
Prix : 241.200.000 DT
